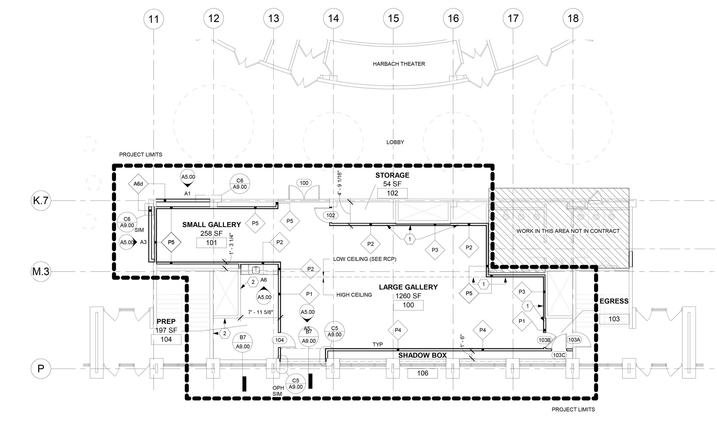
KNOX COLLEGE | BORZELLO ART GALLERY

Galesburg, Illinois
Completed 2018

CHRISTNER, INC PROJECT TEAM
PROJECT MANAGER | Stacey Wehe
PROJECT DESIGNER | Melissa Harlan
PROJECT ARCHITECT | Eric Shripka

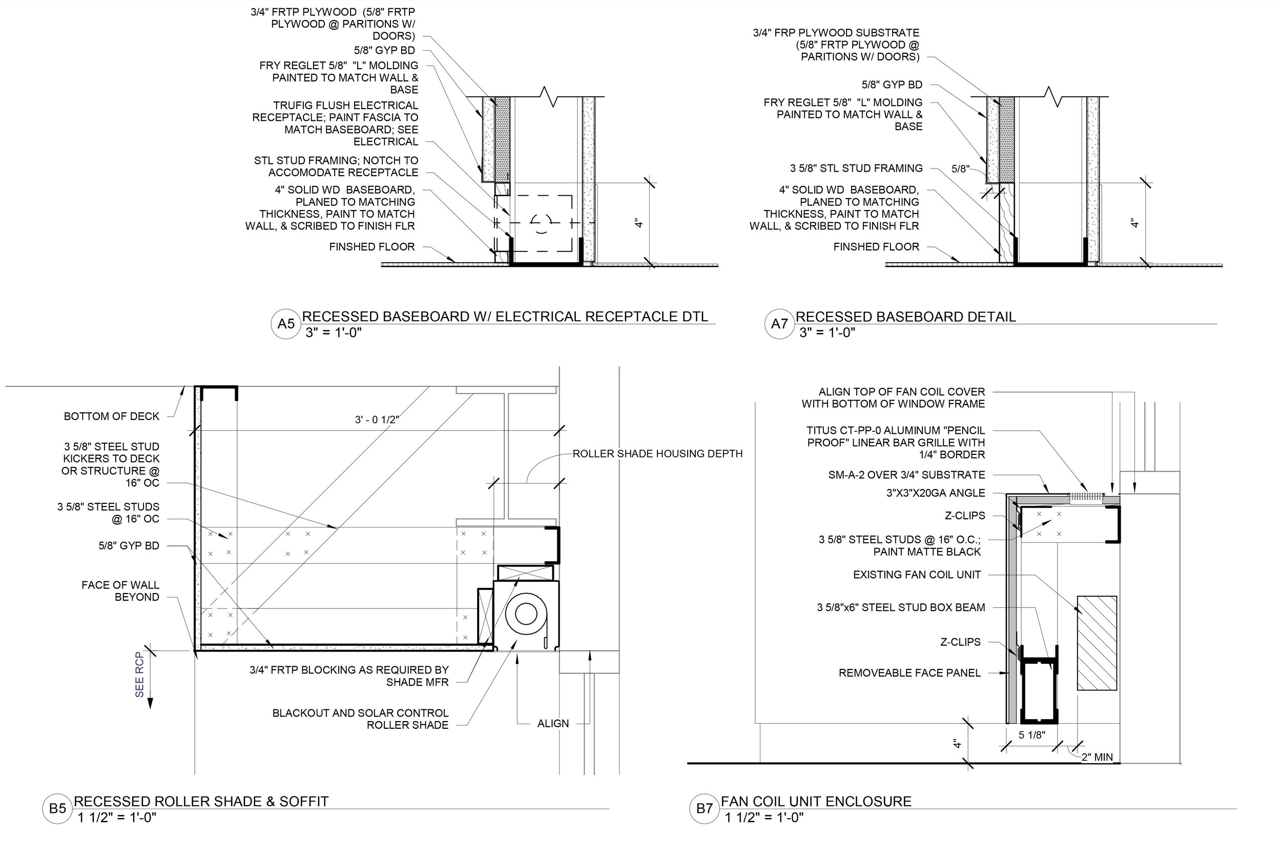
The Borzello Art Gallery project renovated existing office spaces in the Ford Fine Arts Center into a new teaching gallery to enhance their art history and curation programs. My role as project architect included design development through construction administration.